🔎 Ce este un plan de săpătură fundații?

Planul de săpătură fundații este o documentație tehnică esențială ce oferă toate detaliile privind forma, dimensiunea și adâncimea excavației necesare pentru turnarea fundației unei construcții. Acesta ține cont de:

  • tipul solului;
  • cotele topografice;
  • riscurile geotehnice;
  • reglementările tehnice în vigoare (STAS, NP, Coduri de proiectare);
  • metoda de execuție (manuală sau mecanizată).

🧱 De ce este esențial un plan de săpătură fundații corect?

Un plan de săpătură bine întocmit asigură:

  • stabilitatea fundației;
  • evitarea tasărilor sau fisurilor în structura de rezistență;
  • optimizarea costurilor de excavație;
  • conformitate legală și tehnică.

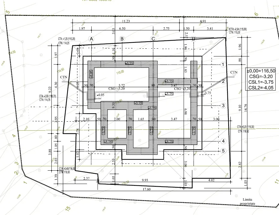
📏 Cum se interpretează un plan de săpătură fundații (exemplu practic)

Analizăm un plan real – imaginea atașată – și extragem cele mai relevante elemente.

📐 Cote și niveluri

  • ±0.00 = 116,50 m – nivelul de referință (cota zero);
  • CSG = -3.20 m, CSL1 = -3.75 m, CSL2 = -4.05 m – cote săpătură generală, respectiv locală.

Aceste cote indică adâncimea la care trebuie să se realizeze săpătura față de nivelul natural al terenului.


🧪 Parametri geotehnici (din studiul geotehnic)

  • Structura litologică: soluri vegetale, argile prăfoase, nisipuri fine, până la 7.0 m adâncime.
  • Risc geotehnic: moderat – categorie geotehnică 2.

🔹 Presiune convențională:

  • P admis = 150 kPa
  • P critic = 190 kPa

🚜 Cum se face săpătura – adâncimi recomandate

Conform normativului C 169/88 și observațiilor din plan:

✔️ Pentru terenuri nesprijinite:

  • 0,75 m – umpluturi;
  • 1,25 m – coeziune medie – argilă prăfoasă;
  • 2,00 m – coeziune mare – argilă compactă.

✔️ Pentru terenuri sprijinite (cu utilaje):

  • Argilă moale → b/h = 1,25
  • Argilă prăfoasă → b/h = ±1,75

📌 Aceste proporții asigură stabilitatea pereților săpăturii fără risc de prăbușire.


🧰 Normative și reglementări incluse

🔧 Respectă:

  • STAS 3300/85 pentru dimensiunarea fundațiilor;
  • C169/88 – norme săpături și excavări;
  • NP120-14 – lucrări în apropierea altor construcții;
  • STAS 6054/77, CR 1-1-4/2012 – evaluarea acțiunilor vântului/zăpezii.
Citește și:  Ce înseamnă acoperiș în două ape – De ce este preferat de majoritatea românilor

🏗️ Plan săpătură fundații – Ghid complet pentru construcții 2025 1

🌍 Parametri specifici de amplasament (conform plan săpătură fundații)

✅ Parametri climatici:

  • Grosime strat de îngheț = 0,90 m
  • Presiunea zăpezii = 2,5 kN/m²
  • Viteza vântului = 0,7 kN/m² (IMR 50 ani)

✅ Parametri seismici:

  • Ag = 0,25 g
  • Tc = 0,7 s

⚠️ Execuția corectă a săpăturii – Sfaturi esențiale

  1. 🔎 Verifică nivelul de fundare (CSG) în toate punctele clădirii.
  2. 📏 Respectă proporțiile b/h din plan – nu săpa pereții verticali în soluri instabile.
  3. ⚖️ Execută controlul compactării umpluturilor (min. 92–95% Proctor).
  4. 🧱 Evită așezarea fundației pe umpluturi necompactate sau strat vegetal.

📷 Integrarea planului în execuție

🗺️ În plan se observă:

  • conturul fundației trasat clar cu dimensiuni exacte;
  • cote topografice (linia de nivel) care indică panta terenului;
  • zone unde cota de excavație variază (diferență între CSL1 și CSL2);
  • traseul conductelor și rețelelor subterane de evitat.

📌 Aceste detalii trebuie transpuse fidel în șantier – altfel pot apărea dezechilibre în structură.


❓Întrebări frecvente

Q: De ce variază adâncimea săpăturii (CSL1 vs. CSL2)?

A: Pentru a adapta nivelul de fundare în funcție de topografia terenului și cerințele structurale.

Q: Este obligatoriu studiul geotehnic pentru planul de săpătură?

A: Da. Acesta oferă datele necesare pentru stabilirea adâncimii de fundare și tipului de sol.

Q: Cine întocmește planul de săpătură?

A: Proiectantul de rezistență, împreună cu inginerul geotehnician și arhitectul, pe baza datelor din studiu.

🔗 Citește și:

🟢➤ Studiul geotehnic este obligatoriu? Ce trebuie să știi
🟢➤ Adâncimea minimă de fundare – norme și exemple
🟢➤ Armare fundație casă – ghid complet cu schiță